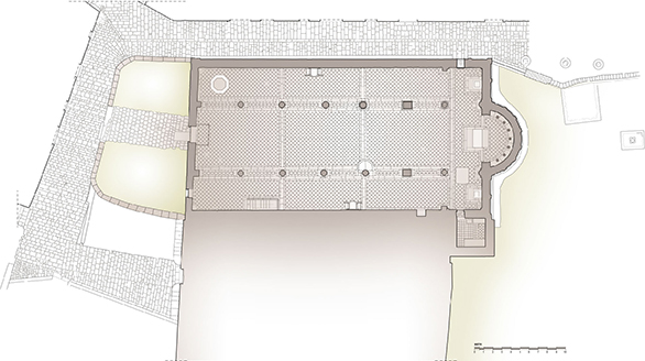
Rilievo della Pieve
26/09/18 21:30
La Maestà di Gropina
14/03/18 16:38
Articolo estratto dal periodico comunale PRATO MAGNO
La rivista integrale, dedicata al Centenario di Venturino Venturi può essere letta al link PRATO MAGNO – Anno III n° 1/4
Articolo estratto dal periodico comunale PRATO MAGNO
La rivista integrale, dedicata al Centenario di Venturino Venturi può essere letta al link PRATO MAGNO – Anno III n° 1/4